As GM mentioned yesterday, the Argos Group is presenting its plans for the Hurt Home to the ANC and Old Georgetown Board next week. GM got a copy of those plans; here’s what’s in them.
The general framework of the plan is the same as it was when it was giving the public nod in the summer. Namely, the building will be converted into 15 condos. The condos will be contained within the original building and the 1924 addition (which is the part of the front facade that juts out to the east, but which looks the same as the rest of the facade). The other later additions to the back of the building will be removed. Thirty parking spaces will be constructed by adding to the existing surface lot.
Here are some new details:
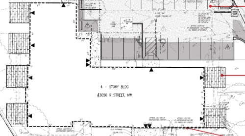
Here is the plan for the parking lot. The existing lot is the light gray part and the darker gray is the proposed additions. Despite the fact they are proposing increasing parking spots by about 50%, the actual area of the lot appears to grow much less than that (particularly in the direction of the grassy area). The plan calls for the use of permeable surfaces such that the total amount of impermeable surface may be lower after the changes.
The proposal also calls for six 15′ square patios outside the ground floor condos. These would face to the east and west.
The proposal also gives us a first glimpse at what the floor plan may look like. It appears that each condo will be two floors with atriums. The lower condos will occupy the basement and the first floor. The upper condos will occupy the second story and the attic. Just eyeballing it, GM thinks the lower condos look at bit bigger than the upper condos, plus the ceilings on the first floor are quite high (looks like 13′).
So it’s a bit of a trade off. Live in the lower condos and you get a patio and cathedral ceilings. Live in the upper condos and you get a great view of the park and no sounds of footsteps upstairs. From GM’s experience, the lower condos will be the expensive ones.
All in all, some pretty nice digs. The price that has been mentioned in public meetings is somewhere in the $800k range, but it could end up lower than that.
















Pingback: ANC Round Up: Good PR Edition | The Georgetown Metropolitan
what happens to the blind residents in the Hurt Home?
Denise: The Hurt Home ceased to be a home for the blind decades ago. It was a home for at risk children most recently, but even that stopped about seven years ago. It’s been pretty much empty since then.
when are these expected to be ready?
Thanks GM!!
Pingback: Hurt Home Becomes the Montrose, Construction Begins | The Georgetown Metropolitan
The lights in the back of the building, in the middle of a residential area are extremely bright and disturbing to the neighbors.