The ANC meets for its July session tonight via Zoom at 6:30.
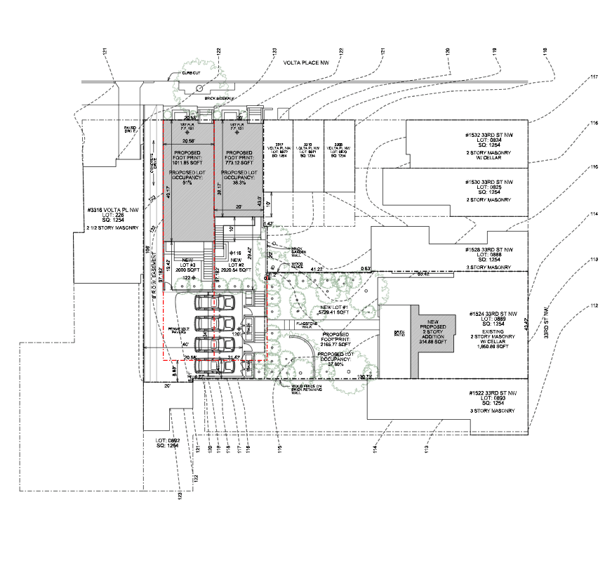
One item of note is the application by the recent purchaser of the historic “tavern” building on 33rd St. (scare quote used because despite the plaque, the building was not likely ever used as a tavern). They would like to subdivide the property to allow the construction of two new houses on Volta.
This sounds like an odd request, since the home is on 33rd St., several houses away from Volta, but the lot is huge and wraps all the way around to Volta. The plan would be to replace a two car driveway with the new homes:

There’s a really housing shortage in DC, and any more building will help. You might think that homes like this, which will likely sell for 7 figures, won’t help housing affordability, but it does. One more seven figure home in Georgetown, means one sub-seven figure home in other parts of the city doesn’t get bid up, and so on.
GM understands that the design concept for the two new homes was initially rejected by the OGB, but primary on aesthetic grounds. Hopefully a better design will be approved and eventually there will be two more homes, and two new families, in the neighborhood.
Here is the rest of the agenda:
Page 1
GOVERNMENT OF THE DISTRICT OF COLUMBIA
Advisory Neighborhood Commission 2E
ANC 2E Public Meeting
Tuesday, July 5th, 2022
at 6:30 p.m.
Online at: bit.ly/ANC2EJuly2022
In accordance with the “COVID-19 Response Emergency Amendment Act of 2020” and
current DC Health limitations on mass gatherings, this meeting will be held online via
Zoom and can be accessed at the link above (there is no fee or account needed to use
Zoom).
If you do not have a computer or access to the internet, you may join the meeting via phone
at (301) 715-8592 or (646) 558-8656 with meeting ID 860 6815 2863 #.
Approval of the Agenda – 6:30 pm
• Approval of the ANC’s July 5th, 2022 Meeting Agenda
• Approval of the ANC’s May 31st, 2022 Meeting Minutes
Administrative – 6:35 pm
• Public Safety and Police Report
• Approval of the ANC’s FY 2022 Quarter 3 Financial Report
Community Comment – 6:45 pm
• Update from the Mayor’s Office
• Update from Councilmember Brooke Pinto’s Office
• Update from the Department of Parks and Recreation and the Department of General
Services Regarding the Jelleff Recreation Center Project
• Update from EastBanc Regarding the Company’s Vision for Georgetown
• Update from the Friends of Georgetown Waterfront Park
• Update from Georgetown Main Street
• Update Regarding MacArthur High School Planning
New Business – 7:50 pm
• Consideration of a Resolution Regarding the Neighborhood’s Rat Issues
• Consideration of a Post-Event Resolution Regarding the Special Event Application for
the Lawyers Have Heart 10K & 5K
• Special Event Application for the DC Bike Ride on Saturday, September 10th, 2022
Page 2
Alcoholic Beverage Control Board – 8:10 pm
• Application by The Avery for a New Retailer’s Class “C” Bed and Breakfast License at
2616 P Street NW (ABRA-121441)
• Application by Four Seasons Hotel for Renewal of the Establishment’s Retailer’s Class
“C” Hotel License at 2800-2810 Pennsylvania Avenue NW (ABRA-074900)
• Application by Eno Wine Bar for Renewal of the Establishment’s Retailer’s Class “C”
Restaurant License at 2810 Pennsylvania Avenue NW (ABRA-097368)
• Application by Billy Martins Tavern for Renewal of the Establishment’s Retailer’s Class
“C” Restaurant License at 1264 Wisconsin Avenue NW (ABRA-060407)
• Application by Das Ethiopian Cuisine for Renewal of the Establishment’s Retailer’s
Class “C” Restaurant License at 1201 28th Street NW (ABRA-086644)
• Application by Chez Billy Sud for Renewal of the Establishment’s Retailer’s Class “C”
Restaurant License at 1035-1039 31st Street NW (ABRA-096103)
• Application by Sticx for Renewal of the Establishment’s Retailer’s Class “C” Restaurant
License at 1728 Wisconsin Avenue NW (ABRA-116203)
• Application by Farmers Fishers Bakers for Renewal of the Establishment’s Retailer’s
Class “C” Restaurant License at 3000 K Street NW (ABRA-074934)
• Application by AMC Theatres Georgetown 14 for Renewal of the Establishment’s
Retailer’s Class “C” Restaurant License at 3111 K Street NW (ABRA-099730)
• Application by OKI & Georgetown for Renewal of the Establishment’s Retailer’s Class
“D” Restaurant License at 1608 Wisconsin Avenue NW (ABRA-107067)
• Application by Ristorante Piccolo for Renewal of the Establishment’s Retailer’s Class
“C” Restaurant License at 1068 31st Street NW (ABRA-111952)
• Application by City Sliders for Renewal of the Establishment’s Retailer’s Class “C”
Restaurant License at 1529 Wisconsin Avenue NW (ABRA-117354)
• Application by Chaia LLC for Renewal of the Establishment’s Retailer’s Class “C”
Restaurant License at 3207 Grace Street NW (ABRA-099787)
• Application by Foxtrot for Renewal of the Establishment’s Retailer’s Class “C”
Restaurant License at 1267 Wisconsin Avenue NW (ABRA-115705)
Public Space Committee – 8:20 pm
• Public Space Application for the Installation of Bollards at 3140 Dumbarton Street NW
(DDOT # 379004)
Historic Preservation Review Board – 8:30 pm
• Historic Preservation Review Board Concept Application for the Subdivision of One Lot
into Three Lots and Construction of Two Three-Story Rowhouses at 1524 33rd Street
NW (HPRB #22-313)
Zoning – 8:40 pm
• Presentation Regarding an Upcoming Planned Unit Development (PUD) Application for
3300 Whitehaven Street NW
• Board of Zoning Adjustment Application for a Special Exception from the Matter-ofRight Uses Requirements to Permit a Food Delivery Use in an Existing, Attached, TwoStory Commercial Building at 1719-1721 Wisconsin Avenue NW (BZA #20752)
Page 3
Old Georgetown Board – 8:55 pm
Full Review at This Time by ANC 2E: The ANC proposes to adopt a resolution regarding the
following projects, which are on the upcoming July 7th, 2022 agenda of the Old Georgetown Board
(OGB).
- SMD 2E05 – OG 22-200 (HPA 22-349)
2800 Pennsylvania Avenue, NW (Square 1195, Lot 30)
Commercial
Two rooftop decks, shade structure and mechanical enclosure
Concept - SMD 2E05 – TBD (HPA TBD)
3500 Water Street, NW (Square 1179, Lot 805)
Key Bridge Boathouse
Extend existing chain link and barbed wire fencing
Permit - SMD 2E05 – OG 22-186 (HPA 22-317)
1023 31st Street, NW (Square 1190, Lot 77, 835, 69)
Commercial
Add penthouse and reskin, construct five-story addition
Concept - SMD 2E05 – OG 22-157 (HPA 22-288)
1061 31st Street, NW (Square 1198, Lot 63)
Commercial
Paving and landscape changes, replace wood siding
Permit - SMD 2E06 – OG 22-213 (HPA 22-362)
2915-2917 Dumbarton Street, NW (Square 1241, Lot 827, 828)
Residence
Combine two lots and alterations to rear elevations
Concept - SMD 2E06 – OG 22-181 (HPA 22-312)
1511 30th Street, NW (Square 805, Lot 1268)
Residence
Rear addition
Permit - SMD 2E07 – OG 22-204 (HPA 22-353)
3023 Q Street, NW (Square 1282, Lot 806)
Residence
New side entry, window and door reconfiguration, HVAC relocation
Concept
No Comment at This Time by ANC 2E: The following projects, which are on the upcoming July 7th,
2022 agenda of the Old Georgetown Board (OGB), have not been added to the ANC meeting agenda
for OGB-related design review and we do not propose to adopt a resolution regarding them at this
Page 4
time. If there are concerns about any of these projects, please contact the ANC office by Friday, July
1st, 2022. - SMD 2E02 – OG 22-202 (HPA 22-351)
1656 35th Street, NW (Square 1292, Lot 812)
Residence
Window replacement
Permit - SMD 2E02 – OG 22-191 (HPA 22-340)
3345 Q Street, NW
Residence
Replace side door
Permit - SMD 2E02 – OG 22-168 (HPA 22-299)
3210 Reservoir Road, NW (Square 1280, Lot 1001)
Residence
Solar panel installation
Permit - SMD 2E02 – OG 22-208 (HPA 22-357)
3418 Reservoir Road, NW (Square 1291, Lot 848)
Residence
Addition
Permit - SMD 2E02 – OG 22-138 (HPA 22-255)
3303 Volta Place, NW (Square 1273, Lot 210)
Residence
Roof replacement
Permit - SMD 2E02 – OG 22-198 (HPA 22-347)
1680 Wisconsin Avenue, NW
Commercial
Rooftop antenna and stealth canister replacement
Permit - SMD 2E03 – OG 22-182 (HPA 22-313)
1524 33rd Street, NW (Square 1254, Lot 889)
Residence
Two new rowhouses
Concept - SMD 2E03 – OG 22-144 (HPA 22-261)
1529 34th Street, NW (Square 1254, Lot 859)
Residence
Replace existing one-story hyphen with two-story hyphen
Concept - SMD 2E03 – OG 22-161 (HPA 22-292)
Page 5
3321 N Street, NW (Square 1229, Lot 137)
Residence
Rooftop solar panels
Permit - SMD 2E03 – OG 22-210 (HPA 22-359)
3401 N Street, NW (Square 1228, Lot 832)
Residence
Screened-porch addition, fenestration alterations, gate replacement
Permit - SMD 2E03 – OG 22-206 (HPA 22-355)
3406 N Street, NW (Square 1221, Lot 91)
Residence
Replace existing rear addition, underpinning
Permit - SMD 2E03 – OG 22-201 (HPA 22-350)
3116 O Street, NW (Square 1243, Lot 823)
Institution
Interior renovation and new elevator door at grade
Concept - SMD 2E03 – OG 22-164 (HPA 22-295)
3131 O Street, NW (Square 1256, Lot 804)
Residence
New second-floor addition
Concept - SMD 2E03 – OG 22-195 (HPA 22-344)
3323 O Street, NW (Square 1245, Lot 34)
Residence
Alterations to areaway, rear fenestration, and removal of two chimneys
Permit - SMD 2E03 – OG 22-193 (HPA 22-342)
3328 O Street, NW (Square 1229, Lot 141)
Residence
Replace siding on east elevation
Permit - SMD 2E03 – OG 22-117 (HPA 22-210)
3315 P Street, NW (Square 1254, Lot 206)
Residence
Rear addition and renovation
Concept - SMD 2E03 – OG 22-156 (HPA 22-287)
3210 Q Street, NW (Square 1271, Lot 43)
Residence
Addition
Concept
Page 6 - SMD 2E03 – OG 22-184 (HPA 22-315)
3410 Volta Place, NW (Square 1253, Lot 851)
Residence
Addition, demolition, alterations, and site work
Concept - SMD 2E05 – OG 22-084 (HPA 22-155)
1071-1075 Thomas Jefferson Street, NW (Square 1197, Lot 62,77)
Commercial
Interior renovation, landscaping, and addition
Concept - SMD 2E05 – OG 22-211 (HPA 22-360)
3000 K Street, NW (Square 1173, Lot 102)
Commercial
Alterations to outdoor terrace
Concept - SMD 2E05 – OG 22-004 (HPA 22-014)
3524-3526 K Street, NW (Square 1179, Lot 0808)
Residence
Demolition of two existing residences; construction of new 4-story, 8-unit apartment
building
Concept - SMD 2E05 – OG 22-112 (HPA 22-205)
3128 M Street, NW (Square 1199, Lot 812)
Commercial
Signage for Buck Mason, alterations
Permit - SMD 2E05 – OG 22-209 (HPA 22-358)
3235 M Street, NW (Square 1207, Lot 108)
Commercial
New signage for Nike
Concept - SMD 2E05 – OG 22-212 (HPA 22-361)
3129 N Street, NW (Square 1232, Lot 805)
Residence
Revision to previous permit to increase height of rear doors
Revised permit - SMD 2E05 – OG 21-136 (HPA 21-245)
3134 Dumbarton Street, NW (Square 1232, Lot 827)
Single-family residence
Window, door, gutter replacement and new rear addition
Permit - SMD 2E05 – OG 22-108 (HPA 22-201)
3140 Dumbarton Street, NW (Square 1232, Lot 812)
Page 7
Residence
Install five bollards in public alley
Permit - SMD 2E06 – OG 22-197 (HPA 22-346)
1306 27th Street, NW (Square 1236, Lot 824)
Residence
Landscape alterations
Permit - SMD 2E06 – OG 22-183 (HPA 22-314)
1524 29th Street, NW (Square 1268, Lot 820)
Residence
Addition and interior renovation
Concept - SMD 2E06 – OG 22-199 (HPA 22-348)
1344 30th Street, NW (Square 1242, Lot 136)
Residence
Fenestration alterations
Permit - SMD 2E06 – OG 22-203 (HPA 22-352)
1530 30th Street, NW (Square 1269, Lot 357)
Residence
Addition
Concept - SMD 2E06 – OG 22-072 (HPA 22-125)
2823 N Street, NW (Square 1235, Lot 836)
Residence
Porch woodwork restoration, door replacement
Permit - SMD 2E06 – OG 22-135 (HPA 22-252)
3072 Q Street, NW (Square 1269, Lot 295)
Residence
Install decorative metal security door
Concept - SMD 2E06 – OG 22-207 (HPA 22-356)
3033 West Lane Keys, NW (Square 1269, Lot 356)
Residence
Pavement alterations
Concept - SMD 2E07 – OG 22-205 (HPA 22-354)
1653 32nd Street, NW (Square 1281, Lot 823)
Residence
Site work, interior alterations
Permit
Page 8 - SMD 2E07 – OG 22-192 (HPA 22-341)
1663 32nd Street, NW (Square 1281, Lot 34)
Residence
Window replacement
Permit - SMD 2E07 – OG 22-194 (HPA 22-343)
2523 P Street, NW (Square 1264, Lot 106)
Residence
Rooftop solar panels
Permit - SMD 2E07 – OG 22-102 (HPA 22-195)
2609 P Street, NW (Square 1265, Lot 95)
Residence
Window replacement
Permit - SMD 2E07 – OG 22-173 (HPA 22-304)
2733 P Street, NW (Square 1266, Lot 299)
Residence
Alterations to rear elevation
Permit - SMD 2E07 – OG 22-196 (HPA 22-345)
2500 Q Street, NW (Square 1264E, Lot 27)
Multi-family residence
New antennas and antenna replacement – AT&T
Permit - SMD 2E07 – OG 22-145 (HPA 22-262)
2500 Q Street, NW, Unit 238 (Square 1264E, Lot 2208)
Multi-family residence
Replace windows damaged by fire
Permit - SMD 2E07 – OG 22-107 (HPA 22-200)
2909 Q Street, NW (Square 1283, Lot 5)
Residence
Window replacement
Permit - SMD 2E07 – OG 22-190 (HPA 22-339)
3058 R Street, NW (Square 1282, Lot 283)
Residence
Solar panels
Permit - SMD 2E07 – OG 22-185 (HPA 22-316)
1665 Avon Place, NW (Square 4776, Lot 140-142)
Residence
Alterations, additions, and construction of two new rowhouses
Page 9
Concept - SMD 2E08 – OG 22-189 (HPA 22-320)
3700 O Street, NW (Square 1321, Lot 833)
Henle Village
Demolish Henle Village for construction of two new residence buildings
Concept






You must be logged in to post a comment.