
Dramatically altered plans have been put forward for the development of several parcels along Wisconsin Ave. in upper Georgetown. Although the site had previously received approval to move ahead with a single apartment building with 40 units, the new plans would call for the construction of nine connected townhouses instead.
As I reported last week, Sherwin Williams is moving out of this lot up to Glover Park. I guessed that this might mean the plan for constructing the apartment building would move forward finally (after having been approved a while ago):

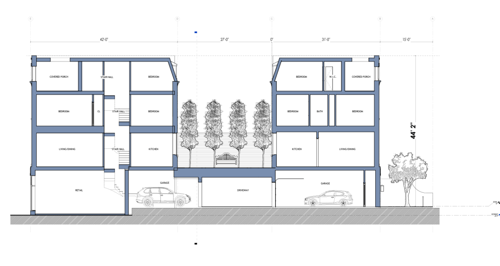
But a filing with the Old Georgetown Board indicates a different direction altogether. As mentioned above, the new plans call for nine rowhouses, which will be connected by a common courtyard. The residences will sit on top of 3,400 sqf of retail along Wisconsin Ave.

The front of the homes will be oriented inwardly to a inner courtyard, which you can see in these drawings. The residents would access their homes from a common entrance on St. that leads to the elevated common courtyard:


The application cites several local examples in Georgetown of precedents for this style (and some international examples too). One specific example it cites is Pomander Walk, in that it is a grouping of a little fewer than a dozen rowhouses faces a narrow common entryway. Coincidentally an even more on point example is another Pomander Walk: Pomander Walk, New York, NY. This fairly anachronistic development in Manhattan that was built in the 1920s has the same design as the Georgetown proposal with a group of small rowhouses built around a common, elevated courtyard.
(It’s not really a huge coincidence that two Pomander Walk developments are similar in design. They’re both named after an early 20th century play about a small street in London built in the same style.)
It’s a bit of a shame that the original apartment building is no longer being proposed. As mentioned above, that would have resulted in 40 units (with 48,000 sqf for residences and 8,000 sqf for retail). The new plans only result in 9 units with about 29,600 sqf for residences and 3,400 sqf for retail. That will likely result in fewer residents moving into a stretch of Georgetown that could use a lot more foot traffic.
But on the flip side, it will result in units averaging more like 3,200 sqf instead of about 1,200 sqf. Clearly the developer thinks that is in more demand. In either event, I’m eager to see something here that contributes more to the neighborhood than a parking lot and a couple of (now) empty storefronts.





This is good news for those of us living in the vicinity who are without garages and thus reliant on street parking, because the reduction from 40 to 9 living units means that the garage facilities in the new development likely will be able to accommodate all the new residents and so our area will remain among the few in G’town where curb parking is not difficult to find.
Contrary to the Metropolitan’s statement, I don’t see much advantage to increased foot traffic along that stretch of Wisconsin. The two blocks already support three (and shortly a fourth) restaurant which have been in place for decades and thus have reliable and sufficient clientage. And that stretch has almost no vacant storefronts besides the buildings vacated to make way for the new development.
Pingback: March ANC Update | The Georgetown Metropolitan