
As I reported last week, Georgetown University is finally moving forward with plans to build a boathouse after decades of efforts. The school submitted its design concept to the Old Georgetown Board, which became publicly available over the weekend.
You can see a 3D rendering above,which show that the boathouse will have a traditional look, similar to the Potomac Boat Club on the left (that building was constructed in 1908, and is the club’s third location believe it or not). GU’s building is proposed to have a granite facade, echoing the academic buildings up on the hilltop.
Here’s a closer rendering:

This image shows the public dock that will also be a part of the proposal. The ramp on the right down to the small dock will be available to the public to put in their own canoes, kayaks and paddle boards. (The Key Bridge Boathouse, which offers boat rentals and storage, will be relocated just up the river past the aqueduct abutment. It will occupy the former location of Dempsey’s boathouse, which similarly offered public rentals in the first half of of last century).
This is what GU’s boathouse could look like from Water Street:

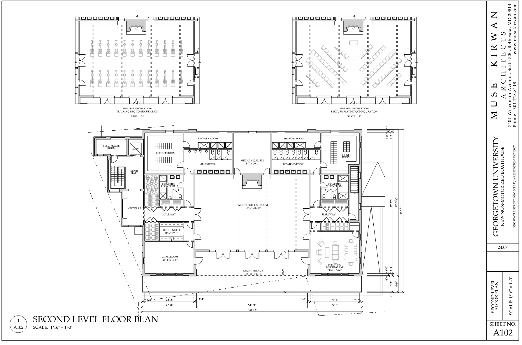
The interior will match the layout of similar boathouses. The first floor will house the shells and other equipment. The second will have locker rooms, meeting rooms and and central multi-purpose room opening onto to an ample porch.

This space will surely be used by the school for functions, but most of the time it will likely serve the same purpose that a similar ball room at the Potomac Boat Club does: a place for rowing machines.
If approved, this will genuinely be a breathtaking facility and surely a new crown jewel of the school.





Pingback: The Transformation of Water Street | The Georgetown Metropolitan