
The popular (if not a bit omnipresent) Tatte Bakery is taking over the former Capital One Bank branch at the corner of Wisconsin and Q St., according to a building permit filed this month.
The bank closed last year after having occupied the lot since the 90s. (Prior to that it was a gas station for many years). Built in the house style of Chevy Chase Bank, the building is attractive but not actually historic. As such it could be razed. But when Roadside Development purchased the property this summer, they announced plans to keep the building and bring in retail. That’s where Tatte comes in.
The Boston-based bakery has been on a rapid expansion into the DC market in the last couple years. There have long been rumors of it finally cracking into Georgetown, but this is the first concrete sign I’ve seen of it actually coming.
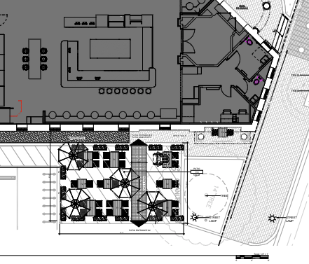
The stores are generally attractive and they could probably do something nice with the former bank interior. Also, the plans call for the parking lot to be converted to outdoor dining:

That could raise some concerns from neighbors along Q St., so sound mitigation will likely be needed.
In either event, this addition will likely add to the hot hot dining hub that this stretch of Wisconsin Ave. has become. Now if we could just convince Chase Bank to also leave in favor of a nice spot…





Be thankful it’s a bakery/cafe: almost anything is better than a bank branch.
Aesthetically, this is a win for the neighborhood. For all their faults, Tatte seems to do a nice job with cafe design. Other than that though….woof. NW does not need another Tatte, and I’m concerned it’ll pull business from Christophe, but especially from Fresh Baguette and Poupon further up Wisconsin.
I also have mixed feelings. Tatte will do a nice build out, but if there’s anything thing that stretch of Wisconsin needs less than a bank, it’s a bakery.
Pingback: December ANC Update | The Georgetown Metropolitan
Pingback: Tatte Bakery Coming to Georgetown l What Now DC