
Tuesday night, renowned restauranteur, Stephen Starr, announced at the ANC meeting that he is intending to open an Italian market/restaurant in the historic Georgetown Market building (formerly the Dean and Deluca).
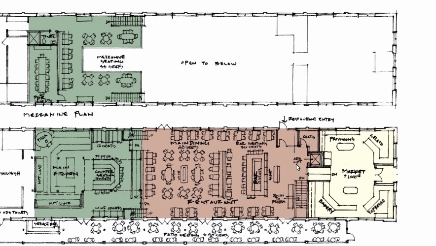
The plans for the space were shown and described. As you can see from the floor plan above, the idea is that there would be a market/bakery/gelato/espresso area in the front of the building. And then the rest of the space would be taken up with space for the kitchen and seating areas for the restaurant. It would appear then that the market element of the plan would be rather small, one might say token. That’s notable since federal law actually requires the space to be used as a market.
But nobody seems likely to press that case since Stephen Starr has a fantastic reputation, and everyone seems thrilled about his arrival to the neighborhood. His Le Diplomate French bistro remains one of the most popular spots in town. And even more thrilling is the fact that Starr is apparently close to securing Nancy Silverton. (Silverton is a famed California baker and chef.)
An amusing moment occurred during the ANC meeting when Starr–apparently believing the meeting to be behind closed doors–let the news of Silverton slip. He then went on to say ““Just calling it an Italian restaurant, I don’t think is doing it justice. It’s going to be an event. It’s going to be a festival of food, I’m not officially announcing that Nancy’s the chef, but I want to give you the idea that we’re definitely going to have a very well-known chef.”
No name has been announced (GM’s just going to call it Il Diplomatico for now) nor has an opening date been suggested. In either event, everyone seems pretty excited about it. It may not be the luxury market that many hoped for, but few will complain.












Pingback: New Restaurants on the Horizon | The Georgetown Metropolitan
really awesome posts and ideas
Pingback: Stephen Starr Restaurant/Market Held Up Over Approval | The Georgetown Metropolitan